Nic není odvážnějšího než mlynářova košile,
která každé ráno bere jednoho zloděje pod krkem.
(německé přísloví)

Chamrádův, Bumbalův, Golátův, Kadlecův mlýn

Chamrádův, Bumbalův, Golátův, Kadlecův mlýn
105
45
Emila Pajurka
Frýdlant nad Ostravicí
73911
Frýdek-Místek
Frýdlant nad Ostravicí
49° 35' 30.6'', 18° 21' 42.6''
Mlýniště bez mlýna
Větší mlýn v centru Frýdlantu, zbořený v roce 2010.
375 jv od kostela sv. Bartoloměje ve Frýdlantě n/O
Ostravice
nepřístupný

Obecná historie:

Frýdlantské mlýny obecně:

Okolo roku 1580 byly ve Frýdlantě 2 mlýny a poměrně vysoký počet pil – celkem 5. V urbáři frýdecko-místeckého panství se uvádí, že: „…fojt Jan drží svobodné fojtství i se mlýnkem, nedává platů až posavad žádných. Od pilného mlýna dává 1 kopu desek aneb 1 fl . (zl). Václav Urbánek od pilného mlýna 1 kopu desk, aneb pak 1 fl . Urban Hoderk od pilného mlýna 1 kopu desk, aneb pak 1 fl . Martin, mlynář, na sv. Jiří 10 gr., na sv. Václava 10 gr. Urban Košík od pilného mlýna 1 kopu desk, aneb pak 1 fl ., ještě ode dvů čtvrtí role dává 8 gr. Řehoř Pobuda na sv. Jiří 4 gr. na sv. Václava 4 gr. od mlýnku 18 gr.“
Roku 1637 si na své nově vyklučené pasece jistý Michal Pavelka vystavěl s povolením vrchnosti malý mlýn. Ve dvou termínech, na sv. Václava a na sv. Jiří, z něj měl každý rok na Hukvaldy odevzdávat po 19 groších. Roku 1640 – 1644 se uvádí v tzv. pasečních registrech mlynář Michal, zřejmě týž z roku 1637.

Dle sumáře z roku 1635 zde bylo v provozu celkem 5 pil, z toho 1 náležela k fojtství a nepodléhala vrchnostenskému zpoplatnění. Počtem pil se Frýdlantu n. O. přibližovaly pouze Kozlovice se 4 „pilnými mlýny“. Kromě pil se tehdy v obci nacházely ještě 3 „moučné mlýny“. Rovněž tento počet byl ve srovnání s ostatními lokalitami na hukvaldském panství vysoký, neboť třemi mlýny disponovaly pouze Kozlovice, městečko Místek a město Ostrava.

K roku 1655 se dovídáme o 6 mlýnech či pilách, které frýdlantští osedlí provozovali a z nichž každoročně platili předepsané částky: „…z mlýna Hoškova na sv. Václava 1 zl., 8 gr., 4 d., na sv. jiří 1 zl., 8 gr., 4 d., z mlýna Martínkova na sv. Václava 1 zl., 8 gr., 4 d., na sv. Jiří 1 zl., 8 gr., 4 d., z mlýna Kamového na sv. Václava 1 R., na sv. Jiří 1 zl…, z mlýna Pavelkova na sv. Václava 19 gr., 2 d., na sv. Jiří 19 gr., 2 d., z mlýna lubenského na sv. Václava 23 gr., 1 d., na sv. Jiří 23 gr., 1 d., z nového mlýna fojtového na sv. Václava 1 zl., na sv. Jiří 1 zl…“
V polovině 17. století byli ve Frýdlaně tři mlynáři, z nichž jeden se jmenoval Adam. Kromě mlynářského řemesla se zčásti věnoval svému chalupnickému gruntu,
při němž choval koně a tři krávy.

V 70. letech 17. století se zmiňují selské mlýny fojta Ondry Pešata, Macka Jandy, jehož mlýn připojila roku 1675 vrchnost k hamrům, a chalupnický mlýn Jana Kanie. Všechny měli pouze jedno složení. Kromě techto tří mlýnů tu byl svobodný mlýn v držení fojta. V některém z nich provozoval svou živnost mlynář Jan.

Ke konci 17. století již počet mlýnů stoupl na 5. Jejich držiteli byli Ondra Ondruš, jistý Martínek, Jura Hošek, Jan Kania a fojt Roman. Dohromady z nich každoročně odváděli vrchnosti 11 zlatých a 29 grošů.

V polovině 18. století tu bylo celkem 6 mlýnů, jejichž držiteli v roce 1746 byli fojt Jan Kuhejda ml., Jakub Kolčař, Tomáš Tichavský, jistý Ondrušák, Matyáš Kožuch a Adam Rakuš. Posledně jmenované dva mlýny byly vystavěny až po roku 1730.
Ve 20. letech 18. století bral mlynář 2,5 zlatého, za měřici pšenice (70 l), za stejnou míru žita 2 zlaté 12 krejcarů, za měřici ječmene pak rovné 2 zlaté a za stejné
množství ovsa 54 krejcarů.

Dle soupisu z let 1754 – 1755 mlel ve fojtově mlýně Jan Polák a v mlýně Františka Kožucha to byl František Salatek. Sami mleli ve vlastních mlýnech Jakub Kolčář, Bartoloměj Tichavský a vdova Gachová. Na rozdíl od roku 1746 se počet mlýnů snížil.
Pět jich ve Frýdlantě fungovalo i kolem roku 1776. Byly to mlýny fojta Tomáše Chrobáčka, Františka Kožucha, Martina Ondruše, Karla Adamovského a Bartoloměje
Tichavského. Martin Ondruš navíc žádal vrchnost o povolení zřídit si při mlýně i pilu, čemuž bylo roku 1777 vyhověno. Mlýn Karla Adamovského odkoupil roku 1780
jeho synovec František Chamrád. Podobně změnil svého majitele mlýn, který držel koncem 18. století Josef Gach, který jej roku 1798 odprodal Josefu Kaňákovi z Pržna.
Ve Frýdlantu pracovalo v polovině 18. století pět mlýnů. Samostatné podniky představovaly jen dva z nich, zbývající tři byly ve spojení se selskými grunty a tvořily tak jen doplněk ve způsobu obživy svých držitelů.

Některé z mlýnů podlehly požárům. Poprvé u většího požáru zasáhly nové sbory v roce 1889 při požáru mlýna „Břeský“ a pak při druhém velkém požáru Frýdlantu nad Ostravicí v roce 1899. Dále z větších požárů to byly požár pily v roce 1915 a požár Kadlecova mlýna v roce 1945.

Mlýny byly původně na čp. 45, 82, 142, 157, 194 a 285.


Historie mlýna obsahuje událost z období:

1833 Valentin Chamrád

Mlynář Valentin Chamrád se stal ve 30. letech 19. století terčem mnoha stížností, když strouha vedoucí na jeho mlýn důsledkem jarních přívalů vod z tajících závějí pravidelně přetékala a zaplavovala okolní chalupnické usedlosti. Frýdlantský mlynář musel nakonec na vlastní náklady zvýšit a zpevnit břehy strouhy, ovšem ani tak nebyli stěžující si chalupníci pokaždé od jarních povodní uchráněni.

Události
  • První písemná zmínka o existenci vodního díla
  • Vznik mlynářské živnosti
Hospodářský typ mlýna
  • Poddanský

Byl v držení rodu Chamrádů po několik generací. Rod vymřel po meči roku 1867.

S dcerou Chamrádovou Marií oženil se Jan Bumbala, který pracoval zároveň jako soustružník při provozu mlynářství na hutích. Taktéž i jeho syn Vladimír. Ten později zakoupil hostinec v Lubně a mlýn vedla jeho matka.

Hospodářský typ mlýna
Smíšený

V březnu 1914 prodal mlýn i s pozemky za 6000 kr. rak. Emilu Šindlerovi.

Hospodářský typ mlýna
Smíšený

1921 kupuje mlýn Anna Koukalová a již 5. 5.1922 kupuje mlýn Jan Golát. Ten starý dřevěný mlýn nechal až na obytné místnosti a stodolu s chlévy zbořit a na jeho místě postavit ještě téhož roku umělý mlýn válcový s Francisovou turbínou.

V roce 1925 přistavěl parní pekárnu a aby zvýšil nízkou vodní sílu vybavil mlýn novým naftovým motorem. Blízkou vilu čp. 472 vystavěl roku 1929 na místě starých obytných částí bývalého mlýna.

Roku 1928 převzal mlýn bratr Jana Goláta František, který, jelikož se dobře oženil, postavil za obytnou místností na bývalé Bumbalově zahradě nynější vilu.

1930 Jan Golát

Ve 30. letech mlýn koupil v dražbě Miloš Kadlec, později řidič při rozvozu chleba a pečiva v SM pekárnách závod 3 Frýdek-Místek.

Hospodářský typ mlýna
Smíšený

Mlýn po válce vyhořel (1945), ale byl znovu obnoven.

Události
  • Zaznamenání katastrofy (požár, povodeň, zranění, úmrtí, aj.)
Hospodářský typ mlýna
Smíšený

Od roku 1950 tu byla výroba a míchárna krmiv, v 80tých letech již byl mlýn mimo provoz.

Události
  • Zánik mlynářské živnosti

2010 mlýn do základů zbořen.

Události
  • Zánik budovy mlýna

Příjmení mlynářů působících na mlýně:

  • Chamrád
  • Bumbala
  • Šindler
  • Koukal
  • Golát
  • Kadlec
  • Chamrát

Historie mlýna také obsahuje:

1833 Valentin Chamrád (Chamrát)

Do 1867 – rod Chamrádů

Od 1867 – Jan Bumbala
Do 1914 – Vladimír Bumbala (syn předešlého)
1914–1921 – Emil Šindler
1921–1922 – Anna Koukalová
1922–1928 – Jan Golát
1928 – František Golát (bratr předešlého)
1930–1950 – Miloš Kadlec

Mlýn je vyobrazen na:

Předměty spojené s osobou mlynáře a provozu:

    neexistuje
    06 2013
      městský
      mlýn na potoku (50 - 1000 l/s)
      mlýnice a dům samostatné budovy
        zděná
        vícepodlažní
        Dnes jde o vysokou cihlovou budovu na parcele č. 837/1 bez čp. na ul. Emila Pajurka. Stojí na místě
        staršího dřevěného mlýna na parcele č. 65, který se jižním štítem přimykal kolmo k náhonu.
        V červenci 2010 byl tento bývalý mlýn do základů zbourán.
            • zcela bez technologie aj.
            Žádná položka není vyplněna
            Zaniklý
            • pekárna
            1925 zřízena parní pekárna
            • stavidlo
            • náhon
            • turbínová kašna
            • lednice
            Mlynář Valentin Chamrád se stal ve 30. letech 19. století terčem mnoha stížností, když strouha vedoucí na jeho mlýn důsledkem jarních přívalů vod z tajících závějí pravidelně přetékala a zaplavovala okolní chalupnické usedlosti. Frýdlantský mlynář musel nakonec na vlastní náklady zvýšit a zpevnit břehy strouhy, ovšem ani tak nebyli stěžující si chalupníci pokaždé od jarních povodní uchráněni.
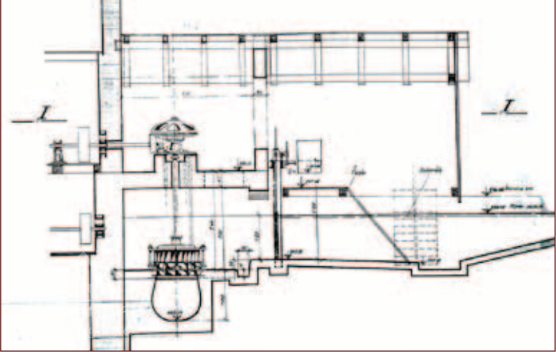
            Před mlýnem se nacházelo stavidlo, která doleva odvádělo vodu regulačním kanálem, aby se tento za mlýnem opět s náhonem spojil. Kanály tak vytvářely menší ostrůvek, dodnes částečně zachovalý a v terénu znatelný.
            Typturbína Francisova
            StavZaniklý
            Popis1930: 1 turbína Francis, hltnost 1,3 m3/s, spád 1,5 m, výkon 19,5 HP (14,43 kW)
            Typturbína Francisova
            StavZaniklý
            Popis1930: 1 turbína Francis, hltnost 1,3 m3/s, spád 1,5 m, výkon 19,5 HP (14,43 kW)
            Typnaftový motor
            StavZaniklý
            PopisInstalován 1925
            Typnaftový motor
            StavZaniklý
            PopisInstalován 1925
            Typelektrický motor
            StavZaniklý
            PopisInstalován ve 30. letech
            Historické technologické prvky
            AutorJiří Tichánek, Jan Štěpánek, Ing. Pavel Šmíra
            NázevVodní mlýny na Frýdecko-Místecku
            Rok vydání2013
            Další upřesněnírkp., s. 186-191
            AutorJiří Tichánek, Jan Štěpánek, Ing. Pavel Šmíra
            NázevVodní mlýny na Frýdecko-Místecku
            Rok vydání2013
            Další upřesněnírkp., s. 186-191
            AutorMinisterstvo financí
            NázevSeznam a mapa vodních děl RČS
            Rok vydání1932
            Místo vydáníPraha
            Další upřesněnísešit 16 (Olomouc), s. 16

            Žádná položka není vyplněna

            Základní obrázky

            Historické mapy

            Plány - stavební a konstrukční

            Historické fotografie a pohlednice

            Současné fotografie - exteriér

            Současné fotografie - interiér

            Současné fotografie - vodní dílo

            Vytvořeno

            30.11.2020 12:28 uživatelem doxa (Jan Škoda)

            Majitel nemovitosti

            Není vyplněn

            Spoluautoři

            Uživatel Poslední změna
            Rudolf (Rudolf Šimek) 25.1.2021 18:42