Kněžský a mlynářský váček se nenaplní.
(německé přísloví)

Městský, Harlassův mlýn; Deutschmühle, Harlassmühle

Městský, Harlassův mlýn; Deutschmühle, Harlassmühle
333
Sokolská
Stříbro
349 01
Tachov
Stříbro
49° 44' 59.8'', 13° 0' 7.7''
Mlýn s turbínou, který vyrábí elektřinu
Opravené budovy mlýna a elektrárny stojí pod městem nedaleko starobylého kamenného mostu. V areálu má sídlo firma VODAKVA, Stříbro - vodovody a kanalizace.
Pod městem v průmyslové zóně
Mže
nepřístupný

Obecná historie:

Mlýn stával u mostu přes řeku Mži již ve středověku, po požáru v roce 1897 jej zakoupil Johann Heinzmann, mlynář z Kladrub, a v letech 1899–1901 jej přestavěl na třípodlažní mlýn umělecký, přestavbu a úpravy obytné části včetně fasád navrhl stavitel Andreas Deimling. V letech 1904–1905 Heinzmann na základě smlouvy s městem Stříbrem vybudoval při mlýně elektrárnu veřejného osvětlení, jejíž dynama Siemens­-Schuckert poháněla nejprve turbína a po roce provozu také parní stroj. V roce 1928 získal Heinzmann povolení na přeměnu stávající stejnosměrné sítě na trojfázový střídavý proud. V elektrárně dal instalovat generátor o 65 kVA a trafostanici s transformátorem o výkonu 50 kVA propojil se sítí Elektrárenského svazu severopošumavských okresů, spol. s r. o. se sídlem v Tachově. Od roku 1934 vedl podnik po otcově smrti Richard Heinzmann, po roce 1945 byly mlýn a elektrárna znárodněny. Mlýn převzaly Západočeské mlýny, n. p. v Plzni, elektrárna pracovala až do šedesátých let 20. století. Roku 1979 areál získaly Západočeské vodárny a kanalizace, nový správce nechal v roce 1982 zbourat celé severní křídlo, takže byl uvolněn průjezd do ulice Na Příkopech. Nedávno opravený mlýn zdobí západní novorenesanční trojúhelný štít s volutami, průčelí elektrárny k vodě má atiku s řadou čučků a rovněž trojúhelný štít. V současné době je v majetku města Stříbra, které ho pronajímá soukromé vodárenské společnosti.


Historie mlýna obsahuje událost z období:

Georg Schmidt klade do těchto míst tzv. Oldřichův mlýn, údajně založený bratrem Oldřichem z Řádu Křížovníků s červenou hvězdou a připomínaný k roku 1342

Události
  • První písemná zmínka o existenci vodního díla
  • Vznik mlynářské živnosti
Hospodářský typ mlýna
  • Vrchnostenský

1577 Nový mlýn

Události
  • První písemná zmínka o existenci vodního díla
Hospodářský typ mlýna
  • Vrchnostenský

1651 Soupis poddaných dle víry: nájemce mlynář Kryštof Prantl (24 let), manželka Anna (28), děvka Markéta (14), všichni katolíci

1654 Berní rula: mlýn o 2 kolech, Matěj Šular

1680 Stanislav Fiklšer

1727 revizitace Berní ruly: mlýn o 2 kolech s pilou, Johann Harlas

mlýn patřil městskému špitálu, Harlasové byli v emfyteutickém držení, obnovili nadaci pro výživu městské chudiny a obyvatel špitálu

1847 Tadeáš Harlass, přikoupil strážní domek u Dolní brány

1881 zakoupili Petr a Anna Trägerovi

1884 nucená dražba zadluženého mlýna, 1885 zakoupili Josef a Anna Ullrichovi

1899 zakoupili Johann (*1867 v Rájově) a Barbora Heinzmannovi, drželi jej až do odsunu

1901 mlýn přestavěn

1904 u mlýna zřízena elektrárna

Hospodářský typ mlýna
Námezdní

28.10.1918 Johann Heinzmann vypnul ve městě proud, aby Češi nemohli slavit vznik republiky, rozlícený dav pak svrhnul rakousko-uherského orla do řeky a poškodil pomník Josefa II.

1927 elektrárna přebudována ze stejnosměrného na třífazový střídavý proud

1928 otec Johann a syn Richard (*1900, zastával funkci stárka) Heinzmannovi

V roce 1930 byl majitelem mlýna a elektrárny Jan Heinzmann.

1945 mlýn konfiskován, národní správce mlynář Jedlička

1956 ukončen provoz mlýna, zbořena stodola ve dvoře

1957 po zatopení mlýnů v Čerňovicích a Dolanech se uvažovalo o modernizaci mlýna

1965 ukončen provoz elektrárny

do roku 1967 mlýn veden jako strategická rezerva, Mlýny a těstárny Pardubice, závod Plzeň, mlynář Jedlička zde bydlí jako nájemník

1977 od Mlýnů zakoupil za 40.000 Kčs v zastoupení podniku Západočeské vodovody a kanalizace Josef Kronďák

1980 mlýn přestavěn na kanceláře, obytná část přiléhající k hradbám zbořena, terén zvýšen o 2-3 m

1984 obnoven provoz výkonnější turbíny 20 HP

 

Události
  • Zánik mlynářské živnosti

1994 v privatizaci zakoupilo město Stříbro

1998 demontovány zbytky satrých turbín, oběžní kolo ponecháno před mlýnem jako relikvie

V současnosti v objektu sídlí VODAKVA Stříbro, čistírny odpadních vod

Příjmení mlynářů působících na mlýně:

  • Prantl
  • Šular
  • Fiklšer
  • Harlass
  • Harlas
  • Träger
  • Ullrich
  • Heinzmann
  • Jedlička

Historie mlýna také obsahuje:

1651 Kryštof Prantl

1654 Matěj Šular

1680 Stanislav Fiklšer

1727 Johann Harlas

1847 Tadeáš Harlass

1881 Petr Träger

1885 Josef Ullrich

1899-1945 Johann Heinzmann

1930 - Jan Heinzmann

1945 Jedlička

současnost - VODAKVA Stříbro


Zobrazit více

Mlýn je vyobrazen na:

Předměty spojené s osobou mlynáře a provozu:

  • Hlavičkový (firemní) papír
dochován bez větších přestaveb
04 2016
    městský
    mlýn na malé řece (1000 – 7000 l/s)
    mlýnice a dům pod jednou střechou, avšak dispozičně oddělené
    • raná moderna do roku 1920
    • moderní 1920 – 1945
    • 1945 – současnost
    zděná
    jednopatrový
    Obytná budova je jednopatrová, mlýnice - elektrárna přízemní
    zachovány novorenesanční fasády z roku 1901
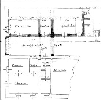
    1901 mlýn radikálně přestavěn, zřízeno patrové boční křídlo s průjezdem, které navazovalo na hospodářskou budovu, přisatvěnou ke skále, na níž je založena městská hradba
    přistavěna kotelna parního stroje s komínem
    1956 zbořena stará stodola ve dvoře
    1980 zbořena obytná část, přiléhající k hradbám a terén zde zvýšen o 2-3 m
    • zdobený zděný štít
    • plastická omítková výzdoba fasád a štítů
    • okno
      • zcela bez technologie aj.
      veškeré zařízení po roce 1967 demontováno
      Žádná položka není vyplněna
      Před mlýnem je uložena stará Francisova turbína
      Dochovaný
      • pila
      • výroba elektrické energie
      1727 pila
      1904 u mlýna zřízena elektrárna
      1927 přestavěna ze stejnosměrného na třífazový střídavý proud
      V roce 1930 byla u mlýna v provozu elektrárna.
      1965 ukončen provoz elektrárny
      • jez
      • náhon
      • odtokový kanál
      • turbínový domek
      Typturbína Francisova
      StavDochovaný
      VýrobceJulius Hübner a Karl Opitz, Pardubice
      Popis1904 instalována 1. turbína Hübner a Opitz
      V roce 1930 měl mlýn 2 Francisovy turbíny, hltnost 4,8/3,8 m3/s, spád 1,7/1,2 m, výkon 54/32 HP.
      1945: 2 Francisovy turbíny se svislými hřídeli, instalované 1915 a 1920
      1984 obnoven provoz výkonnější turbíny 20 HP
      1998 zbytky turbín demontovány, oběžní kolo postaveno před mlýn jako pomník
      Typturbína Francisova
      StavDochovaný
      VýrobceJulius Hübner a Karl Opitz, Pardubice
      Popis1904 instalována 1. turbína Hübner a Opitz
      V roce 1930 měl mlýn 2 Francisovy turbíny, hltnost 4,8/3,8 m3/s, spád 1,7/1,2 m, výkon 54/32 HP.
      1945: 2 Francisovy turbíny se svislými hřídeli, instalované 1915 a 1920
      1984 obnoven provoz výkonnější turbíny 20 HP
      1998 zbytky turbín demontovány, oběžní kolo postaveno před mlýn jako pomník
      Typvodní kolo na spodní vodu
      StavZaniklý
      Popis1654, 1727 o 2 kolech
      Typparní stroj, lokomobila
      StavZaniklý
      Popiszřízen 1904 pro pohon elektrárny
      Typparní stroj, lokomobila
      StavZaniklý
      Popiszřízen 1904 pro pohon elektrárny
      Historické technologické prvky
      AutorMinisterstvo financí
      NázevSeznam a mapa vodních děl republiky Československé
      Rok vydání1932
      Místo vydáníPraha
      Další upřesněníPlzeň, str. 43
      Odkaz
      Datum citace internetového zdroje
      AutorMinisterstvo financí
      NázevSeznam a mapa vodních děl republiky Československé
      Rok vydání1932
      Místo vydáníPraha
      Další upřesněníPlzeň, str. 43
      Odkaz
      Datum citace internetového zdroje
      AutorClaudia Weck
      NázevMühlen, Mühlenbesitzer, Mühlenpächter und Müllermeister im Archivbereich Pilsen 1. Teil Kladrau (Kladruby), Mies (Stribro) und Umgebung
      Rok vydání2018
      Další upřesněnís. 93-97
      Odkazhttps://www.familia-austria.at/index.php/datensammlungen/oeffentliche-daten/1447-muehlen-in-kladrau-mies-und-umgebung
      Datum citace internetového zdroje01 2021
      AutorZdeněk Procházka
      NázevCestami krajánků aneb putování po mlýnech a vodních provozech na Tachovsku a Stříbrsku
      Rok vydání2018
      Místo vydáníDomažlice
      Další upřesněníDíl I. - Mže, s. 152-158
      AutorTomáš Řepa
      NázevJohann Heinzmann, mlýn a elektrárna
      Místo vydáníIndustriální topografie
      Další upřesněníIndustriální topografie
      Odkazhttp://www.industrialnitopografie.cz/karta.php?zaznam=V010525
      Datum citace internetového zdroje03 2025

      Žádná položka není vyplněna

      Základní obrázky

      Historické mapy

      Plány - stavební a konstrukční

      Historické fotografie a pohlednice

      Současné fotografie - exteriér

      Současné fotografie - exteriér - detaily stavebních prvků

      Současné fotografie - vodní dílo

      Současné fotografie - technologické vybavení

      Současné fotografie - předměty spojené s osobou mlynáře

      Vytvořeno

      8.4.2016 15:56 uživatelem Helena Špůrová

      Majitel nemovitosti

      Není vyplněn

      Spoluautoři

      Uživatel Poslední změna
      Rudolf (Rudolf Šimek) 8.4.2017 09:47
      doxa (Jan Škoda) 30.11.2025 20:57