Hlas hráčů na loutnu, zpěváků, pištců a trubačů už v tobě nikdo neuslyší, žádný řemeslník kteréhokoli řemesla se v tobě už nikdy nenajde, ani zvuk mlýnského kamene se v tobě už nikdy neozve.
(Zj 18, 22)

Nový, Říhův mlýn

Nový, Říhův mlýn
59
-
Dvakačovice
538 62
Chrudim
Dvakačovice
49° 58' 47.4'', 15° 53' 10.0''
Mlýn bez funkčního vodního motoru
Mlýn se zajímavými pozůstatky štukové výzdoby fasády z konce 19. stol. Je zde dochována i původní Francisova turbina z r. 1913.
Dvakačovice
Zminka
nepřístupný

Historie mlýna obsahuje událost z období:

Mlýn postaven v 16. stol. na kanálu spojujícím Novohradku s Loučnou

Události
  • Vznik mlynářské živnosti
Hospodářský typ mlýna
  • Poddanský

1704 soupis mlýnů: dvě složení s dvěma koly

Mlýn však chybí na starých mapách

Události
  • První písemná zmínka o existenci vodního díla

1862 přestavěn na spodní vodu

do katastrální mapy z roku 1872 dokreslen jako novostavba

1930 Růžena Žáková

Hospodářský typ mlýna
Smíšený

1950 poslední mlynář Jan Říha, ukončen provoz

Příjmení mlynářů působících na mlýně:

  • Říha
  • Kroulík
  • Žák

Historie mlýna také obsahuje:

Josef Kroulík

1930 Růžena Žáková

1939-1950 - Jan Říha (RR)

Mlýn je vyobrazen na:

Předměty spojené s osobou mlynáře a provozu:

  • visačka na pytel
částečně adaptován
05 2012
    venkovský
    mlýn na malé řece (1000 – 7000 l/s)
    mlýnice a dům pod jednou střechou, avšak dispozičně oddělené
    • klasicismus do roku 1850
    • historizující a architektura druhé pol. 19. století
    • 1945 – současnost
    zděná
    vícepodlažní
    Štuková výzdoba fasády z konce 19. stol.
    Patrová budova s novorománsky zdobenou fasádou z konce 19. století skrývá starší sekernické práce jako je hranice s pracně zdobenými hlavami svorů (vodorovných překladů) a zdobené sloupy nesoucí podlahy s nápisem "Nákladu Jozef Kraulik"
    • zdobený zděný štít
    • plastická omítková výzdoba fasád a štítů
    • tesařsky zdobené podpůrné sloupy
    • klenba
    • epigrafické památky (nápisy, datování aj.)
    • zcela bez technologie aj.
    Strojní zařízení bylo odstraněno. Zůstala zde původní Francisova vertikální turbina.

    Dle výpovědi majitele mlýna se zde nacházely 3 mlecí stolice, jedno mlecí složení kamenné, loupačka, transmise, několik výtahů, reforma, rovinný vysévač, hranolový vysévač a koukolník.
    VýrobceJos. Prokop a synové, Pardubice (a názvy firmy následující)
    VýrobceJos. Prokop a synové, Pardubice (a názvy firmy následující)
    1704: 2 složení
    později 2 kola, krupník a jahelka
    před 1906 umělecké složení s jednou mlecí stolicí a pár francouzských kamenů
    Mlýn na kanále spojujícím řeky Olšinku a Loučnou ve Dvakačovicích měl do roku 1862 čtyři kola na vrchní vodu o průměru necelé 2 m, napájená dvěma vantrokovými žlaby. V uvedeném roce je mlynář Kraulík za čtyři kola na spodní vodu o průměru asi 5 m, osazená po dvou ve dvou žlabech.
    Zaniklý
    • pila
    • krupník
    • jahelka
    • pohon zemědělských strojů
    Dochovaný
    • výroba elektrické energie
    pila v 19. stol., zanikla na poč. 20. stol.
    • jez
    • stavidlo
    • náhon
    • odtokový kanál
    • turbínová kašna
    Do r. 1862 ke 4 kolům na vrchní vodu 2 vantrokové žlaby, po r. 1862 čtyři kola na spodní vodu osazená po dvou ve dvou žlabech.
    Od jezu náhonem do turbinové kašny, po vykonání práce průchodem turbinou dále odtokem zpět do řeky...
    Typturbína Francisova
    StavDochovaný
    VýrobceJos. Prokop a synové, Pardubice (a názvy firmy následující)
    Popisinstalována 1891
    Francisova vertikální turbina s převodovkou, která je pěkně zachována, fa. J. Prokop Pardubice, vyrobena kol. r. 1913.
    1930: 1 turbína Francis, hltnost 1 m3/s, spád 1 m, výkon 4,75 HP
    Typturbína Francisova
    StavDochovaný
    VýrobceJos. Prokop a synové, Pardubice (a názvy firmy následující)
    Popisinstalována 1891
    Francisova vertikální turbina s převodovkou, která je pěkně zachována, fa. J. Prokop Pardubice, vyrobena kol. r. 1913.
    1930: 1 turbína Francis, hltnost 1 m3/s, spád 1 m, výkon 4,75 HP
    Typvodní kolo na vrchní vodu
    StavZaniklý
    Výrobce
    Popis1704: 2 kola
    před 1862: 4 kola na vrchní vodu, prům. 1,4 m
    Typvodní kolo na spodní vodu
    StavZaniklý
    Výrobce
    Popis1862 přestavěn na 4 kola na spodní vodu o prům. 320 cm
    Typelektrický motor
    StavDochovaný
    Popis
    Typelektrický motor
    StavDochovaný
    Popis
    Historické technologické prvky
    dvojnásobná
    • pískovcový kámen | Počet:
      • Válcová stolice s 1 párem rýhovaných válců v litinové skříni
      • periodická
      • válcový
      • čistírenský vysévač | Počet:
        • jednoskříňový
        • sací filtr
        • válcová
        • kapsový výtah | Počet:
        • pytlový skluz - exteriér | Počet:
        • AutorLuděk Štěpán, Magda Křivanová
          NázevDílo a život mlynářů a sekerníků v Čechách
          Rok vydání2000
          Místo vydáníPraha
          Další upřesnění
          Odkaz
          Datum citace internetového zdroje
          AutorLuděk Štěpán, Magda Křivanová
          NázevDílo a život mlynářů a sekerníků v Čechách
          Rok vydání2000
          Místo vydáníPraha
          Další upřesnění
          Odkaz
          Datum citace internetového zdroje
          AutorLuděk Štěpán
          NázevLidové stavitelství ve stavebních plánech a mapách východočeských archívů
          Rok vydání1990
          Místo vydáníPardubice
          Další upřesněnís. 13 - 15
          Odkaz
          Datum citace internetového zdroje
          AutorLuděk Štěpán a Ivo Šulc
          NázevChrudimsko - Mlýny a další zařízení na vodní pohon
          Rok vydání2013
          Místo vydáníChrudim
          Další upřesněnís. 65-66
          AutorMinisterstvo financí
          NázevSeznam a mapa vodních děl Republiky československé
          Rok vydání1932
          Místo vydáníPraha
          Další upřesněnísešit 07 (Chrudim), s. 11

          Žádná položka není vyplněna

          Základní obrázky

          Historické mapy

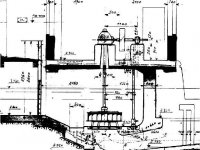
          Plány - stavební a konstrukční

          Obrazy

          Historické fotografie a pohlednice

          Současné fotografie - exteriér

          Současné fotografie - vodní dílo

          Současné fotografie - technologické vybavení

          Současné fotografie - předměty spojené s osobou mlynáře

          Vytvořeno

          4.7.2012 02:15 uživatelem David Veverka (David Veverka)

          Majitel nemovitosti

          Není vyplněn

          Spoluautoři

          Uživatel Poslední změna
          Rudolf (Rudolf Šimek) 4.6.2017 18:04
          Radim Urbánek 28.2.2016 21:13
          Radomír Roup (Radomír Roup) 10.6.2018 13:04
          meisl (Zdeněk Meisl) 9.6.2017 08:12
          doxa (Jan Škoda) 19.8.2025 20:23
          Kazan (Magdalena Hrabová) 28.11.2024 21:51