Mouka od čerta dává špatné pečivo.
(německé přísloví)

Vávrův mlýn

Vávrův mlýn
50
Ke Mlýnu
Komárov
267 62
Beroun
Komárov u Hořovic
49° 48' 7.2'', 13° 51' 16.9''
Mlýn s turbínou, který vyrábí elektřinu
Původní vodní dílo ze 16. století, které sloužilo v počátcích k pohonu mlýna nebo k drcení železné rudy. Po změnách na vodním díle v roce 1790 byl v místě postaven mlýn. Část mlýnského zařízení převzata z původního mlýna uvnitř obce, který ustoupil železářství. Obytná budova klasicistní. Ve 20. stol. vodní dílo zhodnoceno, vodní kola nahrazena turbinou. Mlýnice zvýšena o dvě podlaží. Zařízení modernizováno a automatizováno. Zastaven v roce 1957.
1 km od středu obce
Jalový potok
nepřístupný

Obecná historie:

 Historický vývoj vodní soustavy Vávrova mlýna

 

Úvodem:   Krajina Brd nemá větších toků, které by umožňovaly přímého využití energie proudící vody k pohonu vodních kol . Je  zdrojem toků menších, kde ale svažitý terén umožňuje nahradit energetický nedostatek vyplývající z malého průtoku vody navýšením energetického potenciálu vybudováním vodních nádrží. Vytvořená zásobou vody a její užitečná výška, z  které voda na vodní kolo působí, je pak vodní síla znásobena.

Od dávných dob  vodní kola poháněla nejprve mlýny na obilí. V 16. století potřeba  voda začíná pohánět  mlýny na drcení železné rudy, dmychadla pecí, výhně, hamry a další  související zařízení a potřeba vodní síly, jako jediného zdroje mmechanické energie té doby,  narůstá.  Vhodné místo a vodní dílo je hodnotou, která místním hospodářským vývojem nezaniká, ale jako zdroj energie mění své použití. Stejně tak se jeví historie vodního díla tohoto mlýna.

ROK 1550 – 1621:    Z historických souvislostí těžby rud a rozvoje železářství v okolí Komárova lze dovodit, že umělá vodní nádrž mlýna, nyní zvaná „dolní“, je částí vodní nádrže původní, která měla jméno Rochta. Založena mohla být  mezi rokem 1500 – 1621.

 

V počátku uvedeného časového období mohl být zakladatelem syn Petra Kunaty, Jan, zvaný po otci Pešík, který se jako poslední z bohatého rodu Pešíků věnoval rozvoji železářství na Komárovsku a s tím i souvisejícímu a potřebnému rozvoji vodních děl.  

Tento významný vladyka  měl  v polovině 16. století v zemských deskách zapsáno vlastnictví k široké oblasti Brd. (Ke komárovské tvrzi a dvoru náležely vsi Mrtník, Kařez, Osek, Hrádek, Hvozdec, Záluží, Cheznovice, Třenice, Lhota pod Plešivcem a polovina městečka Radnice. Vedle výše uvedených vsí vlastnil doly, hutě a západní část brdských hřebenů s lesy, které poskytovaly pro zpracování rud a železa dřevěné uhlí. Kupuje Rpety, Tlustici, Újezd, Jivinu, Olešnou a další.) Přestavuje zámek v Komárově a jako oblíbenec krále Vladislava II. Jagellonského získává právo na hrad Valdek, aby jej mohl pro sebe vyplatit jako zboží dědičné pro doprovodnou obrannou funkci ochrany železorudných terénů. Pravděpodobně pro spory o dědictví se v polovině 16. století tento rod zadlužuje a dostává se do hospodářských potíží.

 

ROK 1601:        V dané situaci komárovské panství spolu s doly a hutěmi kupuje významný znalec železářství Jindřich Otta z Losu, provozovatel železné huti Karlovy u Králova Dvora, Staré huti pod Hýskovem a Nové huti pod Nižborem. Intenzivně se zde věnuje rozvoji oboru až do roku 1621, kdy je  po nástupu Habsburků, jako jeden z vůdčích představitelů 27 českých odbojných pánů, popraven. Je druhým možným a pravděpodobným zakladatelem vodní nádrže mlýna.

 

ROK 1621:   Fyzická likvidace účastníků povstání byla nejen útokem proti právu, následně ale i hospodářskou likvidací stavovské opozice. Ekonomická forma trestu byla pogromem na hmotné základy české a moravské stavovské obce. Bylo zkonfiskováno 115 panství, mezi která patřilo i panství Jindřicha Otty z Losu  spolu s komárovským dvorem, rybníky i železnými hutěmi. 

 

ROK 1622:        Komárovský dvůr, jako konfiskát, zakoupila Marie Eusebie, hraběnka z Martinic a ten se tak stává součástí hořovického panství. Stovky dalších majetkových trestů přispívají k hospodářskému úpadku, který je dovršen obdobím Ttřicetileté války a morovými nemocemi, které mají za následek vylidnění oblasti.

 

Tyto skutečnosti, spolu s dále uvedenými, vylučují možnost založení  vodní nádrže  v době pozdější než předpokládané. Písemné doklady, které by poskytly historické skutečnosti byly zničeny při moru v roce 1649, dále spálením archivu hořovického panství Dominikem Vrbnou v roce 1853, zničeny povodní v roce 1872 a zbytky archivu byly zlikvidovány nerozumen v roce 1952.

 

Zůstávají  dvě možnosti původního využití vodní nádrže a to, že již tehdy nádrž, zvaná Rochta, sloužila k pohonu mlýna. To je zmíněno Ve Stručném dějinném  přehledu komárovských železáren, který byl vydán Národním technickým muzeem v Praze za spolupráce Josefa Pazderáka, (člena čs. Společnosti pro dějiny věd a techniky při ČSAV v Praze) ve kterém se uvádí, že farář, ustanovený Jindřichem Ottou z Losu, vyznavač víry pod obojí, se spolu s několika souvěrci před odchodem do Saska  v roce 1622, skrýval ve mlýně v Rochtě. Zda se jednalo o mlýn obilní nebo o stoupu k drcení železné rudy, v minulosti nazývanou také mlýnem. (Mohlo se jednat o železnou rudu z dolu Barbora u Ptákova nad Komárovem, tedy  nad dnešním mlýnem, nebo z dolu Prokop v oblasti Kleštěnice. Podle archivních údajů Ústředního ústavu geologického v Kutné Hoře zde však těžba probíhala později, v létech 1830 - 1890. Možná je i těžba železné rudy z povrchu v okolí mlýna, o které svědčí i průzkumná ražba nad hladinou vodní nádrže.

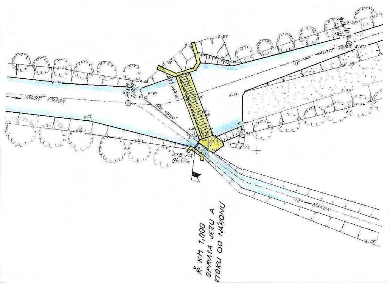
ROK 1756:  Podle cenné mapy hořovického panství, zhotovené zeměměřičem Janem Aloisem Kolbem v roce 1756, je  tato vodní nádrž v dané lokalitě jedinou s jediným označením místa  Rochta. Je napájena náhonem z Jalového (dříve Svatodobrotivského) potoka s místem jímání vody, které se do dnešních dnů nezměnilo. 

 

O vývoji této vodní nádrže a možném využití vypovídá  umístění a stavební řešení tří míst odpadů, které jsou dodnes reálnými doklady částí energetických obvodů   využitých v minulosti. Z nich je možné odvodit výkonové hodnoty a následně i důvody změn.

 

O využití původního vodního díla na západní straně vodní nádrže, dnes nazývané „dolní“, vypovídá zákres odpadní stoky délky přibližně 70 m. (Účelová terénní úprava, která v daných  podmínkách spolu se spádem hlavního toku umožňuje dosažení maximálního výkonu.) Zde také byla  v roce 1995 v  toku Jalového potoka   obnažena povodní    zděná regulační stěna.  Při nedávné opravě odpadu  pak  několik okovaných pilotů.)

 Energeticky nejvhodnější  bylo místo v blízkosti areálu dnešního mlýna, na které navazovala druhá odpadní stoka, směřující z pravé části hráze severním směrem. Napovídá tomu i tvar dna nádrže. Tato odpadní stoka, dlouhá přes 300 m, byla vedena přes údolí zpět do toku Jalového potoka, do kterého ústila před místem dnes zvaném V Brodu.  (Mapa J. A. Kolbeho z roku 1756 zachycuje doprovodnou vegetaci kolem stoky. Trasa stoky zůstává patrná  ještě  na katastrální mapě z roku 1839.) 

ROK 1790: Toto druhé umístění vodního díla  bylo asi v roce 1790 opuštěno ve prospěch místa třetího, na které navázala odpadní stoka dlouhá 550 m, která vedla odpadající vodu po vrstevnici pod svahem do středu obce před budovu zámku, kde v minulosti napájela další, dnes již neexistující vodní nádrž. (I přes jistou ztrátu na využitelném spádu, takto uměle vzniklý tok, nazývaný jako Komárovský potok, znásobil  možné energetické využití vody Jalového potoka k pohonu dalších,  se železářstvím spojených provozů. Tok Jalového, Červeného a Komárovského potoka byl usměrňován jezy a stavidly tak, aby podle momentální  potřeby byl posílen průtok vody vodními díly ležícími na pravém či levém břehu toku Červeného potoka.Vznikl tak důmyslný systéme, kde na úseku dlouhém 10 km bylo posléze vybudováno přes čtyřicet vodních nádrží, které otáčely vodními koly o celkovém výkonu 200 – 300 koňských sil. )

 

V místě  vodního díla Rochta byl  mlýn obnoven. Byl náhradou za mlýn naproti komárovskému zámku, který ustoupil železářské výrobě. (Poloha mlýna před zámkem je zakreslena na mapě J. A. Kolbeho.)Z něho byly údajně do obnoveného mlýna  přemístěny některé části mlecího zařízení. Zda se tak  mlýn vrátil do místa  původního původního obilního mlýna se nepodařilo ověřit.  

Pro rozvoj  železářství a navazujících technologických činností, musel mlýn pro  svou jednoúčelovost  ustupovat. To nesvědčilo vzniku mlynářské rodové tradice.

Ve mlýně se od roku 1790 do roku 1900 vystřídalo deset vlastníků, kteří  k rozvoji mlýna tak proto mnoho nepřispěli. Prvním byl mlynář Čermák. Po něm mlýn získal jeho syn Martin, který jej roku 1830 prodal Aloisi Galusovi. Ten mlýn v roce 1845 prodal Rybovi, kováři z Cerhovic, ten pak ho prodal Zajíčkovi z Únhoště. Ten zase Josefu Kožíškovi, ten pak Josefu Sýkorovi a ten Dominiku Klierovi z Mýta. Po něm v roce 1893 mlýn zdědil jeho syn František Klier. Po úmrtí Františka Kliera v roce 1898 mlýn převzal jeho bratr Václav Klier. Pravděpodobně pro povodňové škody,  pro opilství posledního mlynáře i mlynářky a následnou  zadluženost, mlýn získala v exekuční dražbě Občanská záložna v Komárově.

 

ROK 1901:  Záložna mlýn opravila a prodala mlynáři Antonínu Cajthamlovi, budoucímu otci pěti dcer, z nihž jedna se stala manželkou následujícího mlynáře Petra Vávry, který jako provozovatel mlýna Josef Dvorský v Hořovicích, (dnes Josef Weber) komárovský mlýn vyplatil. Rozvoj mlýna a vodní soustavy je zachycen v dalších kapitolách.

Vodní nádrž mlýna:

 Na přelomu 19. a 20. století je neudržovaná vodní nádrž zanesena stářím a povodní, která se přes ni přehnala v roce 1872. Nátoková část  nádrže se stává nefunkčním zarostlým močálem. Mlynářem jsou zahájeny zásadní rekonstrukce Pro potřebu dalšího provozu mlýna, je uvedená část pozemku nádrže oddělena hrází.  Převážně ruční prací za pomoci lomových vyklápěcích vozíků a kolejí položených a posouvaných po zadní a boční hrázi jsou pak během šedesáti let postupně hráze zvýšeny o 1,5 metru. (K roku 2000 dosáhl rozdíl hladin 2 metrů, vodní plocha  pak dosáhla několikanásobku vodní plochy zaniklé.) Vzniklá vzájemná poloha vodních hladiny dala vzniknout pojmenovávání nádrží jako „horní“ a „dolní“.  Nádrž dolní je pozůstatkem nádrže, pojmenované na mapě  Jana Aloise Kolbeho z roku 1756 jako „Rochta“.

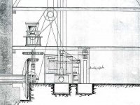
V roce 1947 byla do vodní kašny, postavené uvnitř budovy mlýna, instalována nová turbína  s nátokem z vodní nádrže pod hladinou. Dříve otevřená odpadní stoka byla zrušena. Byla nahrazena  potrubím délky 450 m, položeným do ručně kopaného výkopu  hloubky tří až šesti metrů. To přineslo vyšší spád a umožnilo neomezený bezúdržbový provoz i v zimním období. Nad trubním vedením byla zřízena nová přístupová cesta  ke mlýnu.

V roce 1957 byl na základě rozhodnutí státních orgánů provoz mlýna zastaven. Připojil se tak k ostatním mlýnům, již zastaveným v rámci kolektivizace vesnice.

Vedle mnoha vodních nádrží, které ve 20. století v okolí Komárova   zanikly protržením,  zanesením či zavezením, vodní nádrž mlýna byla jedinou  nově vybudovanou.  (I tak se našli jedinci, kteří neměli zábran pomyslet  použít i této vodní nádrže pro skládku odpadu.)

Do roku 1984 vodní turbína mlýna sloužila pohonem generátoru k výrobě elektrického proudu pro vlastní potřebu budovy mlýna a budovy obytné .

V roce  1984 byla zřízena malá vodní elektrárna, která od tohoto roku dodává elektrický proud do veřejné distribuční sítě.

Mezi léty 1992 a 2000 byly obě vodní nádrže odbahněny a  z podstatné části opraveny související funkční objekty. Byla odstraněna náletová vegetace a kultivována vegetace doprovodná.

Vodní dílo mlýna přežilo  do dnešních dnů  a je tak velmi pravděpodobně trvalým zdrojem mechanické energie po dobu  půl tisíciletí.

           

 


Historie mlýna obsahuje událost z období:

údajně založen koncem 18. stol.,  mlynáři Sýkorové

Události
  • Vznik mlynářské živnosti

1930 Antonín Cajthaml

Hospodářský typ mlýna
Námezdní

Příjmení mlynářů působících na mlýně:

  • Čermák
  • Galus
  • Ryba
  • Zajíček
  • Kožíšek
  • Sýkora
  • Klier
  • Cajthaml
  • Vávra

Historie mlýna také obsahuje:

1800 Sýkora

1930-1939 - Antonín Cajthaml (RR)

Mlýn je vyobrazen na:

Předměty spojené s osobou mlynáře a provozu:

    dochován bez větších přestaveb
    05 2012
      venkovský
      mlýn na potoku (50 - 1000 l/s)
      mlýnice a dům samostatné budovy
      • klasicismus do roku 1850
      • 1945 – současnost
      zděná
      vícepodlažní
      Viz schematický nákres vývoje lokality mlýna mezi léty 1790 až 2000, doplněný časovými údaji.
      • plastická omítková výzdoba fasád a štítů
      • dveře
      • okno
      • klenba
        Mlýn byl do poslední chvíle modernizován. Stal se tak obrazem vrcholu vývoje tradičního lokálního českého mlýna v polovině 20. století. Byl zastaven v roce 1957, v rámci okresu jako jeden z posledních.
        Mlýn nebyl znárodněn. Přes užívání zemědělským družstvem ke skladování a šrotování, zůstala celá technologická část zachována neporušena až do roku 1980, kdy jako nejvhodnější krok se jevilo poskytnutí části technologického zařízení Technickému muzeu v Brně k využití do instalované expozice mlynářské techniky ve mlýně ve Slupi.
        Kompletnost byla narušena a pokračovala pak postoupením dalšího zařzení mlynářům, kteří se snažili o obnovu provozu ve svých mlýnech po roce 1989. Byl demontován aspiratér, reforma, vysévač, krupník, stolice, kartáčka, míchačka, šrotovníky, část dopravních šneků a výtahy. Byly zachovány koše pro příjem obilí, koše válcových stolic, koše pro výdej mouky, filtry, cyklon,loupačka, pračka obilí, transmise a vodní turbina.
        VýrobceJos. Prokop a synové, Pardubice (a názvy firmy následující)
        VýrobceJos. Prokop a synové, Pardubice (a názvy firmy následující)
        VýrobceKoma akc. železárny, Komárov
        Byly zachovány koše pro příjem obilí, automatická váha, koše válcových stolic, koše pro výdej mouky, filtry, cyklon,loupačka, pračka obilí, horní a dolní transmise a vodní turbina.
        Dochovaný
        • výroba elektrické energie
        Mlýn měl vždy vlastní zdroj elektrického proudu, jehož výkon a provozní napětí se měnilo spolu s vývojem vodního díla a vodního motoru od dynama s napětím 110 V po synchronní generátor 220/380 V. V roce 1984 byl synchronní generátor nahrazen asynchronním motorem ve funkci generátoru a spolu s novou elektročástí byla zahájena výroba a dodávka elektrického proudu do veřejné distribuční sítě.
        • jez
        • stavidlo
        • náhon
        • rybník
        • odtokový kanál
        • turbínová kašna
        Jímání vody z toku Jalového potoka v ř. km 1,000. Vtok opatřen jemnými česlemi, stavidlovým uzávěrem a štěrkovou propustí. Voda je přiváděna do vodní nádrže náhonem délky 110m .
        Přes jemné česle je vedena potrubím do vodní kašny, umístěné uvnitř budovy mlýna. Vtok do kašny je opatřen uzavíracím šoupětem. Voda odpadající z turbiny odtéká 450 m dlouhým potrubím do městského svodu povrchové vody.
        Typturbína Francisova
        StavDochovaný
        VýrobceUnion a. s., České Budějovice
        PopisVodní turbína horizontální, kašnová s mokrým kolenem. Užitečný spád 4,6 m, výkon 12 HP, hltnost 215 l/sec. Výrobce UNION, a.s. České Budějovice.
        1930: 1 turbína Francis, hltnost 0,145 m3/s, spád 2,83 m, výkon 4,1 HP
        Typturbína Francisova
        StavDochovaný
        VýrobceUnion a. s., České Budějovice
        PopisVodní turbína horizontální, kašnová s mokrým kolenem. Užitečný spád 4,6 m, výkon 12 HP, hltnost 215 l/sec. Výrobce UNION, a.s. České Budějovice.
        1930: 1 turbína Francis, hltnost 0,145 m3/s, spád 2,83 m, výkon 4,1 HP
        Typelektrický motor
        StavDochovaný
        VýrobceAlois Duda, Praha Vinohrady
        PopisElektromotor 8 kW, výrobce DUDA Praha. Motor sloužil v letních a zimních měsících při nedostatečném přítoku vody.
        Typelektrický motor
        StavDochovaný
        VýrobceAlois Duda, Praha Vinohrady
        PopisElektromotor 8 kW, výrobce DUDA Praha. Motor sloužil v letních a zimních měsících při nedostatečném přítoku vody.
        Historické technologické prvky
        • průchodová
        • sací filtr
        • hadicový / tlakový filtr
        • cyklon
        • šnekový dopravník | Počet:
        • kapsový výtah | Počet:
        • AutorMinisterstvo financí
          NázevSeznam a mapa vodních děl RČS
          Rok vydání1932
          Místo vydáníPraha
          Další upřesněnísešit 01 (Praha), s. 14
          AutorMinisterstvo financí
          NázevSeznam a mapa vodních děl RČS
          Rok vydání1932
          Místo vydáníPraha
          Další upřesněnísešit 01 (Praha), s. 14
          AutorJosef Klempera
          NázevVodní mlýny v Čechách I.
          Rok vydání2000
          Místo vydáníPraha
          Další upřesněnís. 90

          Místo uložení
          Název fondu
          Název archiválie
          Evidenční jednotka
          Inventární číslo, signatura
          Místo uložení
          Název fondu
          Název archiválie
          Evidenční jednotka
          Inventární číslo, signatura

          PRAMENY:

          Historické dokumenty rodinného archivu
          Mapa Hořovického panství od Jana Aloise Kolbeho z roku 1756 -
          Státní zámek Hořovice
          Mapa manufakturní výroby v okolí Komárova , stav k roku 1750
          Mapa hutních a železářských děl podle horních map z roku 1800
          Mapa komárovské vodní spustavy se zachycením stavu v roce 1850 a 1929 Technická zpráva k mapě, zpracováno Ing. Hugo Švábem
          Plán stavu a nivelace vodních zařízení, zpracován Ing. Plenknerem 1850
          Výšková nivelace, provedená Ing. Tvrdkem v roce 1997
          Monografie Hořovicka a Berounska - 1928
          Seznam vodních děl Československé reoubliky k roku 1930 doplněný mapou
          Středočeský sborník historický - 1952
          Státní vodohospodářský plán - seznam toků a vodohospodářských děl - 1954
          Vodní toky a nádrže - ČSAV Praha 1984
          Horní mapa dolu Barbora a Prokop
          Historie železářství a navazujících oblastí, zachycená v publikacích Železáren C.T. Petzold, Firmy KOMA, Akciových železáren v Komárově a firmy Buzuluk Komárov
          Katalogy mlýnských strojů KOMA a Josef Prokop a synové
          Katalogy turbinových zařízení a související odborná literatura

          Základní obrázky

          Historické mapy

          Plány - stavební a konstrukční

          Obrazy

          Historické fotografie a pohlednice

          Současné fotografie - interiér

          Současné fotografie - interiér - detaily stavebních prvků

          Současné fotografie - vodní dílo

          Vytvořeno

          6.10.2012 20:00 uživatelem Petr Vávra

          Majitel nemovitosti

          Petr Vávra

          Spoluautoři

          Uživatel Poslední změna
          Rudolf (Rudolf Šimek) 26.3.2018 22:03
          Radomír Roup (Radomír Roup) 11.6.2018 20:26
          doxa (Jan Škoda) 29.10.2024 19:01