Není-li ve mlýně mouka, jde se do jiného.
(německé přísloví)

Zanamühle, Kilbertův mlýn; Kilbertmühle

Zanamühle, Kilbertův mlýn; Kilbertmühle
7
Lesná - Jedlina - Nová Huť
34701
Tachov
Jedlina
49° 42' 8.8'', 12° 30' 13.4''
Mlýniště bez mlýna
Mlýn byl nejstarší usedlostí v Nové Huti založený v roce 1732, stál na hranici tachovského a velkodvorského panství.
východně od obce Jedlina u Horního Hraničského rybníka
Hraniční potok
nepřístupný

Historie mlýna obsahuje událost z období:

Mlýn byl založen jako nejstarší usedlost v Nové Huti roku 1732 mlynářem z nedaleké Jedliny Adamem Schwantnerem. Svědčí o tom povolení vydané formou smlouvy ze dne 17. 10. 1732, smlouvu podepsal tehdejší majitel panství Tachov hrabě Losy z Losimthalu. Mlynář musel mlýn postavit na vlastní náklady a vrchnosti z něj odvádět 10 zlatých ročně.

Po Adamu Schwantnerovi držel mlýn Michael Schwantner (narozen 1702) a po něm Johann Schwantner (narozen 1751), který jej v roce 1798 vyměnil s mlynářem Josefem Trägerem za Zámecký mlýn v Tachově. V roce 1799 vybudoval Josefův otec Jakub Träger na základě povolení vrchnosti nedaleko položený druhý mlýn čp. 15 nazývaný později Loslebenův. Trägerovi se zde dlouho nezdrželi, již v roce 1808 prodali oba mlýny Johannu Loslebenovi za 12 600 zlatých.

Johann Losleben se narodil v roce 1764 na Čankovském mlýně u Stráže jako syn mlynáře Simona Losleben. Do kraje kolem Nové Huti se dostal sňatkem s nevlastní dcerou mlynáře z nedalekého mlýna zvaného Gochelmühle pod žebráky na Kateřinském potoce. Johann Losleben mlýn čp. 7 přestavěl. Zemřel však již v roce 1810 a mlýn čp. 7 přešel na Johann Georga Loslebena, který se oženil s Barbarou Steiner, dcerou Veita Steinera, mlynáře ze mlýna v obci Lučina (Sorghof). 

Mlýn byl veden v matrikách fary obce Jedlina.

Události
  • První písemná zmínka o existenci vodního díla
  • Vznik mlynářské živnosti

Dalším držitele mlýna čp. 7 byl Johann Losleben (narozen 1835), který kromě mlynářské živnosti obchodoval se dřevem. V listopadu 1869 se ve věku 34 roků oženil s devatenáctiletou Josefou Schifft.

V roce 1878 koupil od Johanna Loslebena mlýn Georg Kilbert (1840–1916), původem z obce Hraničky čp. 24. Mlýn byl tehdy ve zchátralém stavu. Georg Kilbert sice nebyl vyučený mlynář, ale mlýn opravil, rozšířil a zřídil zde také pekárnu chleba. Za něj také mlýn dostal jméno Zanamühle podle toho, že Kilbertovi předci pocházeli z hamru na výrobu hřebíkářského železa, kterému se říkalo Zanahammer. Georg Kilbert přišel na mlýn s manželkou Walburgou Reisovou ze Žebráckého Žďáru, se kterou se oženil v roce 1867. Měli 8 dětí. Kilbertova rodina zde byla evidována i při sčítání obyvatel v letech 1880 a 1890. V hospodářství mlýna bylo 8 krav, 2 voly, 1 valach a 2 prasata v roce 1880, o 10 let později to bylo 13 krav a 1 prase. Georg Kilbert zemřel 30. 7. 1916 tragickým způsobem, kdy ho v maštali rozmačkal býk. Mlýn s pekárnou převzala dcera Walburga, která se provdala za učitele Emanuela Bauera ze Žebráckého Žďárku.

Walburga Bauerová, rozená Kilbertová, provozovala mlýn i v roce 1930.

Walburga Bauerová zemřela ještě na mlýně před odsunem německého obyvatelstva, její manžel a děti byli odsunuti.

Události
  • Zánik mlynářské živnosti

Mlýn byl opuštěný a chátral.

Události
  • Zánik budovy mlýna

V roce 1991 zbyly ze mlýna rozsáhlé zříceniny. Budovy byly částečně použity na stavební materiál, a to až po roce 1989, dřív místo v hraničním pásmu nebylo přístupné.

Začátkem 90. let sem přijeli potomci z Kilbertova rodu a hledali Boží muka, která byla věnována památce poslední mlynářky Walburgy Bauerové s nápisem vytesaným do podstavce v roce 1934. Nalezli a postavili sokl, dřík a hlavici Božích muk, všechny ostatní části památníku zmizely.

Pozemky, na kterých stály mlýny, koupil soukromník a oplotil je, na plot dal nápis „Farma Jedlina – vstup zakázán!“. Přístup k nim tak není možný.

Příjmení mlynářů působících na mlýně:

  • Schwantner
  • Träger
  • Losleben
  • Kilbert
  • Bauer

Historie mlýna také obsahuje:

1731 Adam Schwantner

Michael Schwantner

Johann Schwantner

1798 Josef Träger

1808 Johann Losleben

1810 Johann Georg Losleben

1869 Johann Losleben

1878 Georg Kilbert

1916 – 1945 Walburga Bauerová, rozená Kilbertová

Mlýn je vyobrazen na:

Předměty spojené s osobou mlynáře a provozu:

    neexistuje
    04 2021
      venkovský
      mlýn na potoku (50 - 1000 l/s)
      mlýnice a dům samostatné budovy
        zděná
        vícepodlažní
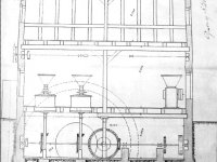
        Mlýnice a obytná část byly dvě samostatné budovy, v obytné budově byla pekárna. Mlýnice měla vnitřní rozměry 9 x 8 m a celkovou výšku 6 m. V roce 1894 byla mlýnice jednopatrová, v roce 1899 měla již 4 pracovní podlaží. Část budovy mlýna sloužila v přízemí jako stáje, v patře bylo skladiště obilí.
            • zcela bez technologie aj.
            Žádná položka není vyplněna
            Zaniklý
            • pekárna
            • náhon
            • odtokový kanál
            • lednice
            Typvodní kolo na vrchní vodu
            StavZaniklý
            Popis1930 – vodní kolo na vrchní vodu, hltnost 0,06 m3/s, spád 7 m, výkon 4 HP
            Typvodní kolo na vrchní vodu
            StavZaniklý
            Popis1930 – vodní kolo na vrchní vodu, hltnost 0,06 m3/s, spád 7 m, výkon 4 HP
            Žádná položka není vyplněna
            Historické technologické prvky
            AutorMinisterstvo financí
            NázevSeznam a mapa vodních děl Republiky československé
            Rok vydání1932
            Místo vydáníPraha
            Další upřesněníCheb, str. 39
            AutorMinisterstvo financí
            NázevSeznam a mapa vodních děl Republiky československé
            Rok vydání1932
            Místo vydáníPraha
            Další upřesněníCheb, str. 39
            AutorZdeněk Procházka
            NázevCestami krajánků aneb putování po mlýnech a vodních provozech na Tachovsku a Stříbrsku, díl III – pravostranné přítoky Mže a vodní toky, které pramení v Českém lese
            Rok vydání2019
            Místo vydáníDomažlice
            Další upřesněnístr. 300-304
            AutorInternet, Porta Fontium
            NázevSbírka matrik západních Čech
            Místo vydáníStátní archiv v Plzni
            Další upřesněníDigitalizované archiválie obce Jedlina
            Odkazhttps://www.portafontium.eu/
            Datum citace internetového zdroje21.4.2021

            Žádná položka není vyplněna

            Historické mapy

            Plány - stavební a konstrukční

            Historické fotografie a pohlednice

            Vytvořeno

            21.4.2021 16:55 uživatelem cestovatelka

            Majitel nemovitosti

            Není vyplněn

            Spoluautoři

            Uživatel Poslední změna
            Rudolf (Rudolf Šimek) 22.4.2021 12:20
            doxa (Jan Škoda) 2.10.2023 23:52