Jako by mu ve mlýně hudl – napomenutí bez užitku.
(české přirovnání)

Kovárna a šrotovník na vodní pohon

Kovárna a šrotovník na vodní pohon
17
Ostravice
73914
Frýdek-Místek
Ostravice 1
49° 32' 45.3'', 18° 24' 4.1''
Mlýn bez funkčního vodního motoru
Mechanická kovárna postavená víceméně načerno Františkem Matýskem v roce 1911, úředně přihlášená 1923 a živnostensky provozovaná do roku 1935. Jelikož František Matýsek vedle kovářské živnosti vlastnil i malé hospodářství, zapojoval na vodní pohon i jednoduchý šrotovník.
800 m severně od evangelického kostela v Ostravici
Sepetný potok
nepřístupný

Historie mlýna obsahuje událost z období:

Dnes již neexistující vodní kovárna zřízená na potoku Sepetný Františkem Matýskem v roce 1911.
Provozovna kovárny byla opatřena vodním kolem, které pohánělo ventilátor a brus. Toto vodní dílo vystavěl Matýsek bez vědomí úřadů.

Vodní dílo vystavěl Matýsek bez vědomí úřadů a přihlásit ho musel až roku 1923.

Kovář František Matýsek používal živnost i vybavení dílny až do roku 1935, kdy s řemeslem skončil. Jeho syn pracoval jako kovář ve Vítkovických železárnách a otcova dílna mu sloužila jen pro jeho potřebu.

Po druhé světové válce vodní pohon přestal být definitivně využíván a časem zanikl.

Události
  • Zánik mlynářské živnosti

Současné čp. 17 – majitel. Lesy České republiky, p.č. 3681.

Příjmení mlynářů působících na mlýně:

Matýsek

Historie mlýna také obsahuje:

1911-1935 František Matýsek

Mlýn je vyobrazen na:

Předměty spojené s osobou mlynáře a provozu:

    částečně adaptován
    08 2013
      venkovský
      mlýn na nestálé vodě (10 - 50 l/s)
      • historizující a architektura druhé pol. 19. století
      roubená+zděná
      přízemní
            Žádná položka není vyplněna
            Jelikož František Matýsek vedle kovářské živnosti vlastnil malé doplňkové hospodářství, zapojoval na vodní pohon kromě zařízení určených ke kovářské práci i jednoduchý šrotovník.
            Zaniklý
            • kovoobráběcí dílna
            1911-1950 mechanická kovárna
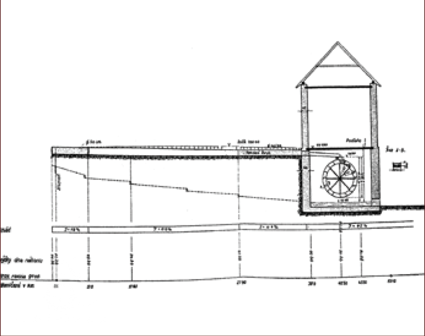
            První ozubené kolo osazené na hřídeli mělo průměr 98 cm, druhé menší na další hřídeli bylo poháněno prvním kolem. Z druhé hřídele vedla řemenice, ze které šel řemen podlahou nad vodním kolem do kovářské dílny na transmisi. Z transmise se střídavě poháněl ventilátor nebo brus. Na to, aby zařízení pracovala zároveň, nebyl dostatek vody.
              Potok byl upraven dřevěným jezem s kamennou výplní a od něho vedl 38 m dlouhý náhon vyhloubený v zemi.
              Typvodní kolo na vrchní vodu
              StavNezjištěn
              PopisJedno vodní kolo o průměru 2,20 m a šířce 60 cm umístěné v prostoru pod podlahou dílny.
              Vodní kolo mohlo být používáno zejména při deštivém počasí.
              Typvodní kolo na vrchní vodu
              StavNezjištěn
              PopisJedno vodní kolo o průměru 2,20 m a šířce 60 cm umístěné v prostoru pod podlahou dílny.
              Vodní kolo mohlo být používáno zejména při deštivém počasí.
              Žádná položka není vyplněna
              Historické technologické prvky
              AutorJiří Tichánek, Jan Štěpánek, Ing. Pavel Šmíra
              NázevVodní mlýny na Frýdecko-Místecku
              Rok vydání2013
              Další upřesněnírkp., s. 638
              AutorJiří Tichánek, Jan Štěpánek, Ing. Pavel Šmíra
              NázevVodní mlýny na Frýdecko-Místecku
              Rok vydání2013
              Další upřesněnírkp., s. 638

              Žádná položka není vyplněna

              Základní obrázky

              Plány - stavební a konstrukční

              Vytvořeno

              8.1.2021 17:00 uživatelem doxa (Jan Škoda)

              Majitel nemovitosti

              Není vyplněn

              Spoluautoři

              Uživatel Poslední změna
              Rudolf (Rudolf Šimek) 23.1.2021 09:43