Považuje špicla za mládka.
(německé rčení)

Dolní mlýn pod Vrchem; Bergmühle

Dolní mlýn pod Vrchem; Bergmühle
176
Hejtmánkovice
550 01
Náchod
Hejtmánkovice
50° 36' 39.9'', 16° 19' 12.3''
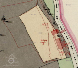
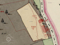
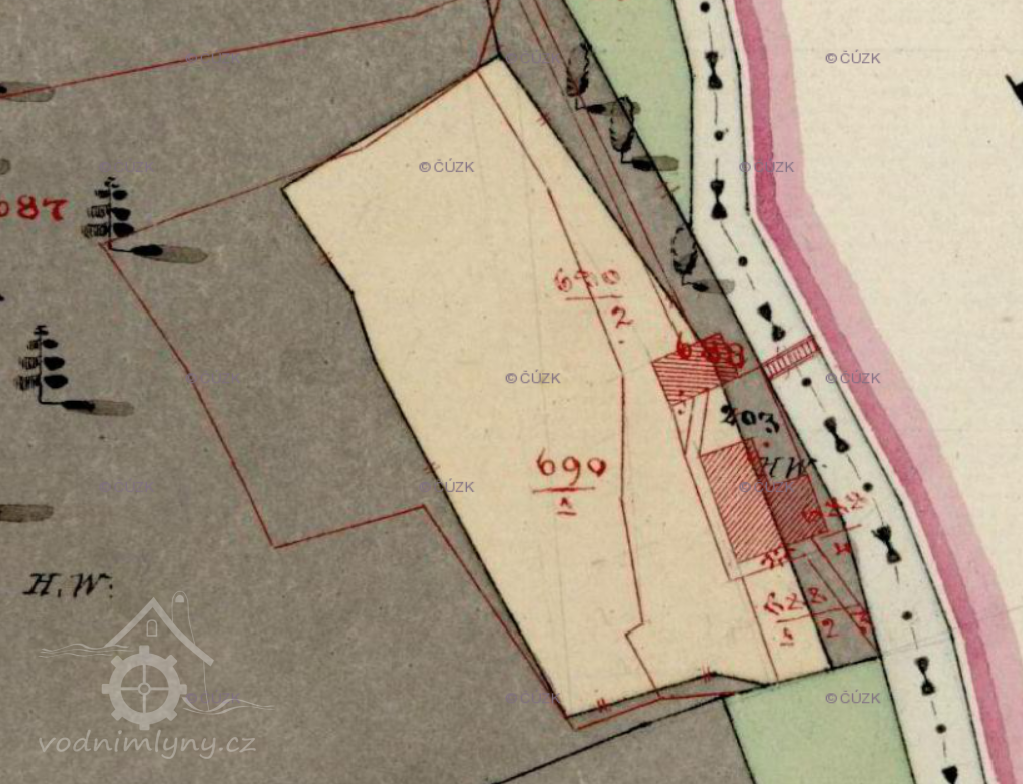
Mlýniště bez mlýna
Novější mlýn, založený až po pol. 19. stol., zanikl po druhé světové válce, zůstaly jen opěrné zdi u Stěnavy a vybetonovaná turbínová kašna.
700 m sz od zastávky Broumov - Olivětín
Stěnava
volně přístupný

Historie mlýna obsahuje událost z období:

Vznikl po roce 1850

Události
  • První písemná zmínka o existenci vodního díla
  • Vznik mlynářské živnosti

1930 majielé František a Richard Kahlerovi

Hospodářský typ mlýna
Smíšený

Zanikl po roce 1953

Události
  • Zánik mlynářské živnosti
  • Zánik budovy mlýna

Příjmení mlynářů působících na mlýně:

Kahler

Historie mlýna také obsahuje:

1930 František a Richard Kahlerovi

Mlýn je vyobrazen na:

Předměty spojené s osobou mlynáře a provozu:

    zřícenina
    03 2018
      venkovský
      mlýn na potoku (50 - 1000 l/s)
            • zcela bez technologie aj.
            Žádná položka není vyplněna
            • náhon
            • turbínová kašna
            Dochována opěrná stěna u Stěnavy a vybetonovaná turbínová kašna.
            Typvodní kolo na vrchní vodu
            StavZaniklý
            Výrobce
            Popis1930: 1 kolo na svrchní vodu, hltnost 0,555 m3/s, spád 3,95 m, výkon 19 HP
            Typvodní kolo na vrchní vodu
            StavZaniklý
            Výrobce
            Popis1930: 1 kolo na svrchní vodu, hltnost 0,555 m3/s, spád 3,95 m, výkon 19 HP
            Typturbína Francisova
            StavZaniklý
            Výrobce
            Popisinstalována po 1930
            Žádná položka není vyplněna
            Historické technologické prvky
            AutorMinisterstvo financí
            NázevSeznam a mapa vodních děl republiky Československé
            Rok vydání1932
            Místo vydáníPraha
            Další upřesněníSešit 08 (Jičín), s. 7
            Odkaz
            Datum citace internetového zdroje
            AutorMinisterstvo financí
            NázevSeznam a mapa vodních děl republiky Československé
            Rok vydání1932
            Místo vydáníPraha
            Další upřesněníSešit 08 (Jičín), s. 7
            Odkaz
            Datum citace internetového zdroje

            Žádná položka není vyplněna

            Základní obrázky

            Historické mapy

            Současné fotografie - vodní dílo

            Vytvořeno

            28.3.2018 10:46 uživatelem doxa (Jan Škoda)

            Majitel nemovitosti

            Není vyplněn

            Spoluautoři

            Uživatel Poslední změna
            Rudolf (Rudolf Šimek) 28.3.2018 21:16